日本房地產,東京不動產|當代東京管理顧問股份有限公司 -- 7.04%メインステージ新中野(6012702)
正在加載......
X
 
會員帳號 :
會員密碼 :
忘記密碼  加入會員
 

7.04%メインステージ新中野(6012702)    首頁 > 物件介紹
 
價格 1,090万円(約台幣228萬) 満租投報率 7.04%
築年月 1989年11月(築37年)

満租時年収
月収

76.8万円 
  6.4万円

物件名

メインステージ新中野

建物構造
階数
戶数

鉄筋コンクリート造
2/4階建

総戸数23戸

交通

東京メトロ丸の内線 新中野駅駅 徒歩7分
東京メトロ丸の内線 東高円寺駅 徒步10分

地址

東京都中野区本町6-31-13

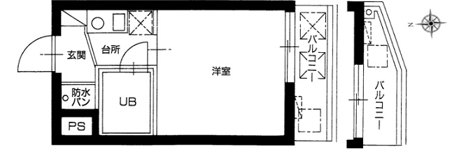
壁芯面積
另有陽台

16.58㎡ (約5.01坪)
  2.73㎡ (約0.82坪)

座向

南向

管理費
修繕積立

7,920円
9,570円

取引態様

現況
仲介

租賃中
管理会社名
管理方式


全部委託

備考
東京不動產大樓配備:
★外牆磁磚
★AUTOLOCK
★無電梯
★腳踏車停車場
★室內洗衣機放置處
所示平面圖為鏡像反轉
大島有記錄(非該戶)

生活機能:
ファミリーマート中野中央五丁目店(便利商店)   約400m
Santoku新中野店(超市)   約300m 
まいばすけっと中野本町4丁目店(超市)   約437m
東高円寺郵便局  約475m
擔當:高階
土地權利:所有權

外觀
 
公設
 

 
平面圖

 

    
Copyright c 2013 當代東京房產顧問有限公司 提供東京不動產,日本房地產 Tokyo Contemporary Real Estate Marketing